Ruko Termurah di Tanjung Mulia dibawah 1 M
Description
Property ID: T 2510/08
Luangkan waktu untuk melihat/berkunjung ke properti secara langsung. Hubungi kami sebelumnya untuk membuat janji bertemu.
Lokasi Terdekat :
- The Paris Paradise
- Mulia Residence
- RM Kurnia Baru
- Yayasan Sosial Balai Persemayam Tanjung Mulia
Note :
**** Ada tambahan harga untuk setiap penambahan tanah ruko jadi ruko berbeda ukuran berbeda harga
**** Ukuran panjang tanah antara 21 m sampai 24 m
Pin lokasi :
https://maps.app.goo.gl/SkfBDyA2etd447dn9
Instagram :
https://www.instagram.com/p/DPnV-TEAZo6/?img_index=1
Tiktok :
https://www.tiktok.com/@bestproperty_medan/video/7559440369423748353
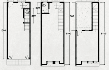
Overview
- ID T 2510/08
- Type Property Baru, Ruko
- Size 120 m2
- Land Size 84 m2
Address
Open on Google Maps- Address Jalan Aluminium Raya
- Country Indonesia
- Province/State Kota Medan
- City/Town Medan Deli
Details
- Property ID T 2510/08
- Price Mulai Rp.975,000,000
- Property Type Property Baru, Ruko
- Property Status Dijual
- Property Label 751-999Juta
- Size 120 m2
- Land area 84 m2
- Surat Sertifikat Hak Milik
- Kondisi Siap Kosong
- Luas Tanah 4x21-24.5 m
- Luas Bangunan 4x10 m
- Tinggi Bangunan 3 Tingkat
- Hadap Selatan
Location
Rating & Reviews
Similar Homes You May Like
LIMITED STOCK!! Rumah Mewah Terbaru daerah Pancing – Well Estate (Jalan Perjuangan)
Rp.688,000,000 / Cicilan 4 Jtan/BlnLAST UNIT!! Rumah Townhouse Baru Jalan Pelita 1 Komplek Sunrise Residence
Rp.738,000,000 / Cicilan 4 Jutaan/Bln- 80 m2





Avarage User Rating
Rating Breakdown
Write A Review